Trento, 47, Sondrio
Scopri il tuo prossimo investimento di successo con questo eccezionale negozio in vendita situato in Via Trento, in una zona centrale e strategica di Sondrio, caratterizzata da ottima visibilità, passaggio costante e facile accessibilità. La posizione rappresenta un valore aggiunto fondamentale per qualsiasi attività commerciale o professionale.
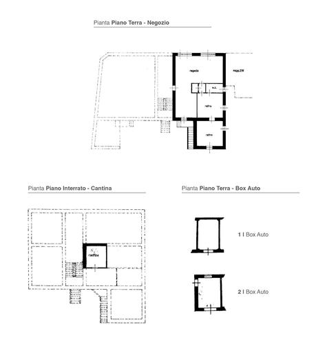
L’immobile si sviluppa su una superficie complessiva di 112 mq, suddivisa tra area negozio e retro-negozio, ed è organizzato in tre locali distinti, una soluzione che garantisce grande flessibilità nella gestione degli spazi e consente una personalizzazione completa in base alle proprie esigenze operative. La disposizione interna lo rende adatto a molteplici utilizzi, come negozio al dettaglio, ufficio, studio professionale o punto vendita specializzato.
La proprietà è completata da cantina, due box auto e un posto auto, elementi di particolare pregio considerando la collocazione centrale dell’immobile, dove la disponibilità di parcheggi rappresenta un vantaggio raro e molto richiesto.
Questa soluzione si rivolge sia a imprenditori alla ricerca di una sede funzionale e ben posizionata, sia a investitori interessati a un bene solido, centrale e con ottime prospettive di valorizzazione nel tempo.
Per maggiori informazioni chiama il 0342-178.03.64 o scrivi a cercocasa@bertolatti.it.
+39 0342 18 55 013
info@bertolatti.it
Via Delle Prese, 17
23100 Sondrio SO
Invio messaggio in corso...