Cesare Battisti, 23, Sondrio
Proponiamo in vendita ampio negozio nel cuore del centro di Sondrio, in una posizione di forte passaggio e grande visibilità, ideale per chi desidera inserirsi in un contesto commerciale dinamico e ben servito.
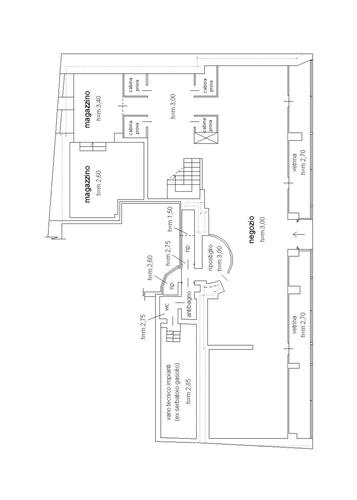
L’immobile si sviluppa su due livelli: al piano terra, con accesso diretto da Via Cesare Beccaria, si trova uno spazio commerciale di 244 mq, luminoso e ben distribuito, valorizzato da ampie vetrine che garantiscono un’eccellente esposizione su strada. Al primo piano è presente un ulteriore ambiente di 317 mq, attualmente adibito a magazzino, ma facilmente adattabile in base alle esigenze.
La generosa metratura e la disposizione degli spazi rendono la soluzione estremamente flessibile, adatta a ospitare qualsiasi tipologia di attività commerciale, direzionale o di servizio, offrendo molteplici possibilità di personalizzazione.
La vendita riguarda esclusivamente i muri del negozio, rappresentando un’interessante opportunità sia per chi desidera avviare o trasferire la propria attività in una zona strategica, sia per chi è alla ricerca di un investimento solido e versatile.
Per maggiori informazioni chiama il 0342-178.03.64 o scrivi a cercocasa@bertolatti.it
+39 0342-21.88.13
info@bertolatti.it
Via Delle Prese, 17
23100 Sondrio SO
Invio messaggio in corso...