Tremogge, Sondrio
In una zona tranquilla e riservata di Sondrio, sul lungo Mallero e a pochi passi dal centro e dal Parco Bartesaghi, proponiamo in vendita un appartamento situato al primo piano di una palazzina storica completamente ristrutturata a nuovo.
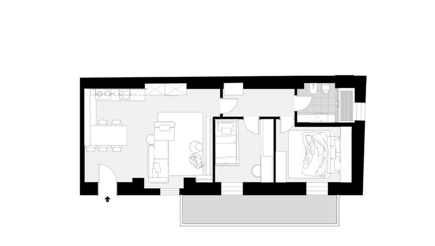
L’abitazione, luminosa e moderna, si compone di un soggiorno con angolo cottura, due camere da letto, un bagno e una cantina di pertinenza. Il punto di forza dell’immobile è il terrazzo di 12,5 mq, perfetto per godere di momenti di relax all’aperto in un contesto silenzioso e piacevole.
La ristrutturazione sarà realizzata con le più moderne tecnologie per l’efficienza energetica, tra cui impianto fotovoltaico, pompa di calore e predisposizione per il condizionamento, assicurando comfort abitativo e ridotti consumi.
Grazie al capitolato personalizzabile, l’acquirente potrà scegliere le rifiniture interne in base al proprio gusto e alle proprie esigenze, rendendo l’appartamento unico e su misura.
La posizione, vicina al centro e a tutti i principali servizi, rappresenta un equilibrio ideale tra tranquillità, comodità e qualità abitativa.
Per maggiori informazioni chiama il 0342-178.03.64 o scrivi a cercocasa@bertolatti.it
+39 0342-21.88.13
info@bertolatti.it
Via Delle Prese, 17
23100 Sondrio SO
Invio messaggio in corso...